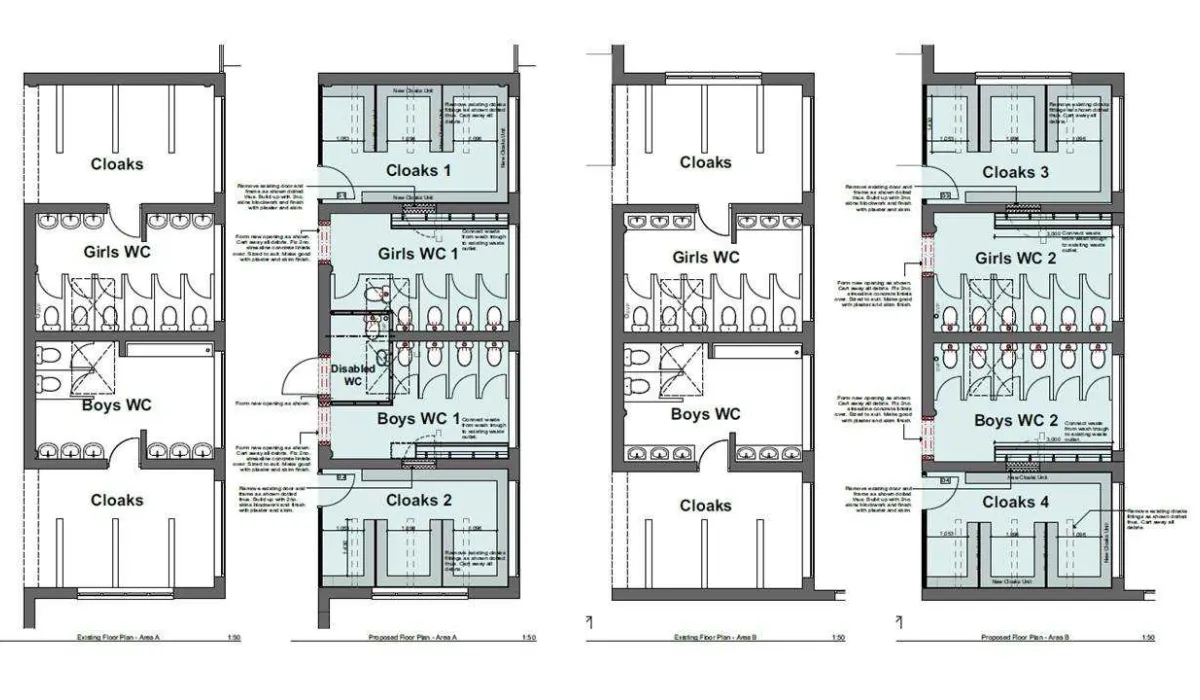
Full Strip Out and Internal Alterations. Roof Remedial Works. Full M&E Package. Drainage Alterations. New Flooring. New Internal Doors, Frames, Skirtings and Architraves. New Cubicles and Vanity Units. New Sanitaryware. Full Replastering and Decoration. Formation of Cloakrooms / Teaching Areas. All Works Completed within 6 Weeks to Avoid Disruption to Client.
Other Education projects
Lorem ipsum dolor sit amet, consectetur adipiscing elit. Suspendisse varius enim in eros elementum tristique.
